実績紹介Works

Works 実績紹介

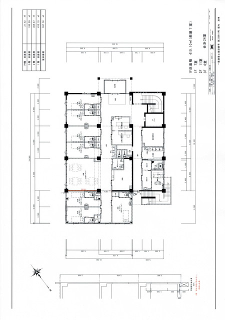
病院リノベーション案件

使われなくなった病院の建物を大規模リノベーションし、新たな介護施設(合計24室)として再生した事例です。

【内装平面図】
【元病院・調整区域】
リノベーション費用 約1億3,000万円
家賃 1,200万円/年
提携運営業者 あり(運営事業者A社をご紹介)

高齢者賃貸住宅&デイサービス

既存の建物を活用することで初期費用を新設の60%に抑え、低価格でのサービス提供を実現した事例です。独自の設備を導入し、集客力も高めています。

【高齢者賃貸住宅&デイサービス】
【高齢者賃貸住宅&デイサービス】
リノベーション費用 約1億円
家賃 3,600万円/年
提携運営業者の紹介 なし

運営業者入れ替え案件(経営再生)

長年の経営ノウハウを活かし、経営難に陥った施設の立て直しをスピーディーに行った再生事例です。

【運営業者入れ替え案件(経営再生)】
【運営業者入れ替え案件(経営再生)】
リノベーション費用 該当なし(経営再生・業者交代案件のため)
家賃 230万円/月(2,760万円/年)
提携運営業者の紹介 あり(前運営業者が破産予定のため、急遽「運営業者A社」との交代・引き継ぎを実施)
施設情報 サービス付き高齢者向け住宅・ナーシングホーム(部屋数:40室)
Page Top